![]() |
В ноябре 2016 г. компания «ТЕХНОС-М+» под руководством Академии ГПС МЧС России провела успешные натурные огневые испытания установки пожаротушения тонкораспыленной водой высокого давления (ТРВ ВД). Испытания проходили на пожарном полигоне в Нижегородской области. |
Целью проведения огневых испытаний на специальном испытательном стенде являлось подтверждение возможности применения в качестве системы пожаротушения при тушении пожаров в кабельных сооружениях и в закрытых дизель-генераторных с большим количеством горючей жидкости (ГЖ) отечественной агрегатной установки пожаротушения, использующей в качестве огнетушащего вещества ТРВ ВД.
Испытания проводились на трёх испытательных стендах. Первый стенд представлял собой макет фрагмента «кабельного сооружения», второй – фрагмент помещения с хранением большого количества горючих жидкостей, третий стенд представлял собой модельный очаг пожара класса 1А..
Первый испытательный стенд представляет собой транспортный контейнер размером 12x2,4x2,6 (см. рис. 1). Контейнер размещается на специально подготовленной площадке. Контейнер оборудуется трубопроводами и распылителями для подачи тонкораспылённой воды для пожаротушения. Рядом со стендом, размещаются насосная установка ТРВ ВД и емкость с водой, подключенная к насосной установке через фильтр.

Рис.1 Схема испытательного стенда макета «кабельного сооружения»
Фотографии испытательного стенда фрагмента «кабельного сооружения», горение пожарной нагрузки, работа установки, показания тепловизора представлены на фотографиях.
|
|
|
|
Фрагмент «кабельного сооружения» |
Горение пожарной нагрузки |
![]() |
|
|
Показания тепловизора |
Работа установки |
Время свободного горения пожарной нагрузки составляло 4 минуты, после этого начиналась подача воды. Время ликвидации горения 4 минуты 42 секунды, общее время подачи воды 10 минут. Факт прекращения горения устанавливался при помощи приборов, фиксирующих температуру внутри стенда. Огневые испытания проводились при открытой двери защищаемого помещения. Запуск и остановка АУП ТРВ производилась вручную по команде руководителя испытаний.
Испытания прошли успешно. Возгорание ликвидировано. Повторного возгорания не наблюдалось.
В результате испытаний получены экспериментальные значения нормативной интенсивности и продолжительности подачи воды, необходимые для ликвидации пламенного горения и исключения возможности повторного воспламенения горючей нагрузки от нагретых конструкций.
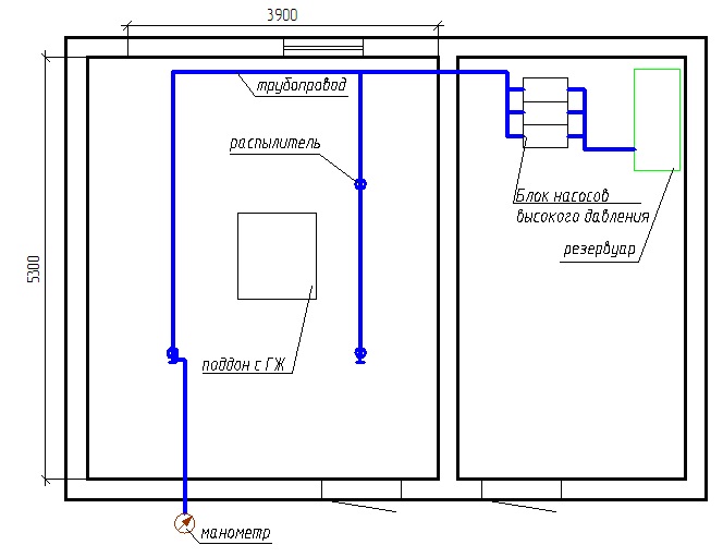
Второй испытательный стенд это фрагмент кирпичного здания – помещение с размерами в плане 5800х4400 мм, высотой 3500 мм. Внутри помещения размещен поддон, наполненный пожарной нагрузкой. Пожарная нагрузка представляла собой смесь бензина АИ-92 (5 литров) по ГОСТ 32513 и дизельное топливо (20литров) по ГОСТ 305-82.
Поддон устанавливался между оросителями. Схема испытательного стенда макета фрагмента помещения для хранения ГЖ представлена на рисунке 2.

Рис. 2 Схема испытательного стенда для макета помещения для хранения ГЖ.
На фотографиях, представленных ниже, показаны огневое испытание данного стенда и показания тепловизора.
![]() |
![]() |
| Огневые испытания макета помещения с большим количеством ГЖ | Показания тепловизора |
Время свободного горения ГЖ составило 1 минуту, после этого запускалась установка и осуществлялась подача воды в защищаемое помещение. Ликвидация горения произошла через 15 секунд после пуска установки, общее время подачи воды 30 секунд. После испытания контрольное принудительное возгорание очагов пожара показало наличие горючей жидкости в очаге. Факт прекращения горения устанавливался при помощи приборов, фиксирующих температуру внутри стенда. Огневые испытания проводились при открытой двери защищаемого помещения. Запуск и остановка АУП ТРВ производилась вручную по команде руководителя испытаний. Полученные в результате натурных огневых испытаний результаты гарантированно обеспечивают ликвидацию пламенного горения и исключают возможность повторного воспламенения пожарной нагрузки в пожароопасных помещениях дизельных электростанциях и помещениях хранения горючих жидкостей.
Дополнительно во время испытаний продемонстрирована эффективная работа ручного малорасходного пожарного крана по тушению модельного очага пожара класса 1А. Модельный очаг представлял собой куб из деревянных брусков, установленный в поддон с ГЖ. Время свободного горения составило 3 минуты
Время ликвидации горения составило менее 3 минут.
![]() |
![]() |
| Тушение ручным малорасходным пожарным краном | Фиксирование прекращения горения при помощи тепловизора |
Малорасходный пожарный кран подтвердил свою эффективность при тушении пожаров класса А.
На испытании присутствовали представители АО «Атомэнергопроект», АО «НИАЭП», ОАО «Концерн Росэнергоатом», Нововоронежской АЭС, Ростовской АЭС, Ленинградской АЭС-2 ОКБ АО «Тензор».
На протяжении всех экспериментов обеспечивалась видео и фоторегистрация натурных испытаний, измерялись и фиксировались параметры среды внутри испытательного стенда, параметры работы установки пожаротушения.

В дальнейшем планируется провести анализ процесса пожаротушения, составить протокол и отчет по результатам испытаний.
Испытания в очередной раз доказали надежность и эффективность установок пожаротушения тонкораспыленной водой высокого давления производства ГК «ТЕХНОС-М+».
Макаров Сергей Владимирович главный специалист по системам пожаротушения ТЕХНОС-М+


















